Este site utiliza cookies para permitir a mudança de língua e o armazenamento dos seus imóveis favoritos. Ao utilizar este site, concorda que o mesmo utilize cookies.

Boavista II


Distrito

Porto

Concelho

Porto

Freguesia

Aldoar, Foz do Douro e Nevogilde




Contactar Imobiliária

*Preenchimento obrigatório
Ao clicar em 'Enviar', declara que aceita a nossa Política de Privacidade.
				
O Boavista II está localizado num dos melhores locais da cidade. 

Junto ao histórico Hospital Militar do Porto, bem no centro da azafama da cidade. É um edifício que oferece conforto, sossego e sofisticação aos seus habitantes, com um número de 46 fogos de habitação de tipologias de T-1 a T-4 e 4 lojas.
Imóvel Área Preço Ref
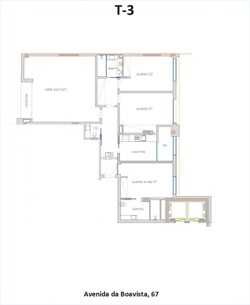
Apartamento T3 Novo com 157m² no Porto – Boavista II139 m2660.000€Boavista 67 1.4Ver Imóvel
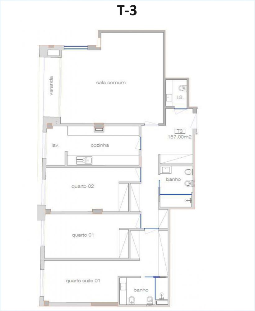
Apartamento T3 Novo com 157m² no Porto 157 m2660.000€Boavista 67 (2)Ver Imóvel
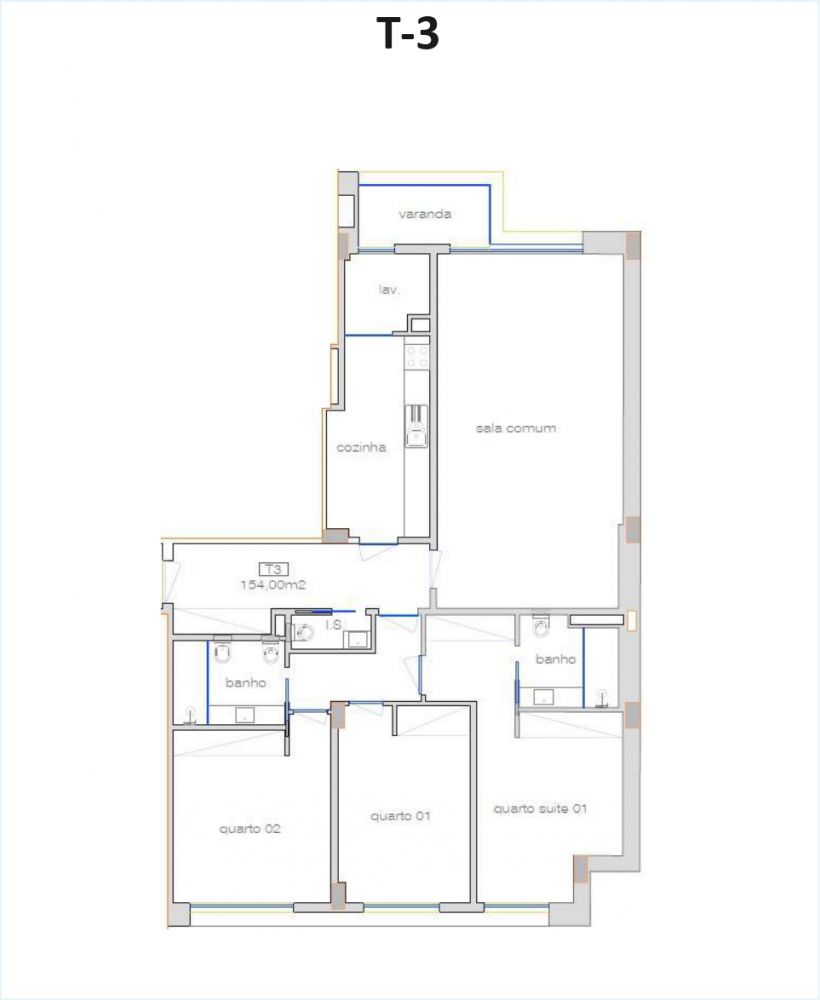
Apartamento T3 Novo com 157m² no Porto – Boavista II154 m2660.000€Boavista 67Ver Imóvel